技术支持
导电胶行业剥离强度怎么测试--三创科仪拉力试验机--三创科仪剥离强度测试仪--厦门市三创科仪检测设备
导电胶一般由基体树脂、导电填料(金属粉末为主)、稀释剂、交联剂、催化剂和其他添加剂组成,是一种固化或干燥后具有一定导电性能和粘结性能的胶黏剂。其导电机理是通过基体树脂的粘接作用把导电粒子结合在一起,形成导电通路,实现被粘材料的导电连接。相比传统焊接,导电胶具有工艺简单环保、低温固化等特点,应用潜力巨大。
然而导电胶在目前的应用中仍存在一些缺陷,如电导率较低,工作时会产生较高的电阻热,导电性能较差,耐碰撞冲击能力较差,尤其是在温度、湿度等环境应力下粘结强度较低。这是由于粘接界面氧化腐蚀、裂缝分层,导电胶蠕变等因素共同导致的,而这将对导电胶的日常应用带来极大的安全威胁。因此,将导电胶粘结强度的性能管控纳入企业质量监管显得尤为重要。
导电胶的粘结强度,通常用“剥离强度”和“剪切强度”两个性能指标表征。剥离,是胶粘接头常见的破坏形式,胶粘连接处受外力作用时,力集中在接头处较狭窄的区域。当这一力大于导电胶的粘结强度时,粘结接头受剥离力作用便沿着胶接面发生破坏。剪切强度表示粘接型胶黏剂在受切线方向的应力时单位面积上的*大断裂负荷。拉伸剪切强度越高则粘接强度也越高,所以在保证导电导热性能良好的情况下导电胶的剪切强度越高越好。
2、测试方法
2.1 剥离强度——180°剥离试验
参照GB/T 2790《胶粘剂180°剥离强度试验方法挠性材料对刚性材料》进行试验。这一试验是将一挠性材料和一刚性材料用导电胶制成胶接试样,然后将胶接试样以规定的速率从胶接的开口处剥开,两块被粘物沿着被粘面长度的方向逐渐分离。
按照标准要求制备试样:刚性被粘试片宽为 25.0 mm±0.5 mm,长为 200mm以上的长条。挠性被粘材料能弯曲180°而无严重的不可回复的变形。除非另有规定,挠性被粘试片的长度不小于 350mm。按胶粘剂的产品说明书进行试样的表面处理2]和使用胶粘剂。在每块被粘试片的整个宽度上涂胶,涂胶长度为 150 mm。
试验步骤:
将挠性被粘试片的未胶接的一端弯曲180°,将刚性被粘试片夹紧在固定的夹头上,而将挠性试片夹紧在另一夹头上。注意使夹头间试样准确定位,以保证所施加的拉力均匀地分市在试样的宽度上(见图1)。启动仪器,使上下夹头以恒定的速率分离。夹头的分离速率为 100±10 mm/min。直到至少有125 mm的胶接长度被剥离。注意胶接破坏的类型,即粘附破坏、内聚破坏或被粘物破坏。仪器自动出具试样的剥离强度数值。至少测试五个试样,取平均值。

2.2 剪切强度
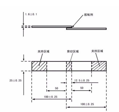
参照GB/T 7124-2008《胶粘剂 拉伸剪切强度的测定(刚性材料对刚性材料)》进行试验。胶粘剂拉伸剪切强度是在平行于粘接面且在试样主轴方向上施加一拉伸力,测出的刚性材料单搭接粘接处的剪切应力。
按照标准要求制备试样:试样根据图2要求制备至少五个,粘接面长度为12.5mm±0.25mm。将试样对称的夹在KT-PSA-1058胶粘剂拉伸剪切试验机的夹具上,夹持处至距离*近的粘接端的距离为50mm±1mm。夹具中可使用垫片,以保证作用力在粘接面内。启动仪器,以5 mm/min~50 mm/min的恒定速度进行试验,使一般破坏时间介于65s±20s。仪器自动计算试样的破坏载荷(N)。至少测试五个试样,取平均值,即为剪切强度。



